Jordan Bennett of Regency Real Estate Brokers - 949-829-7484
MLS: NP26009898 $1,300,000
3 Bedrooms with 3 Baths15 VIA FLORIA
RANCHO SANTA MARGARITA CA 92688MLS: NP26009898
Status: ACTIVE
List Price: $1,300,000
Price per SQFT: $658
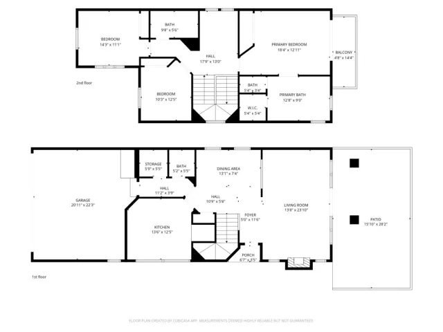
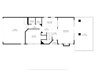
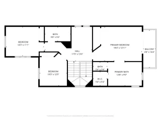
Square Footage: 19763 Bedrooms
3 Baths
Year Built: 1994
Zip Code: 92688Listing Agent: ERNIE CAPONERA of NEWPORT PROPERTIES 714-606-0926
Listing Remarks
Welcome to 15 Via Floria, Rancho Santa Margarita — a beautifully remodeled, modern, and move-in-ready home located in one of the community’s most desirable neighborhoods. This bright and inviting residence features 3 bedrooms, 3 bathrooms, and a 2-car attached garage, with the potential for a 4th bedroom by converting the upstairs loft. The home is exceptionally clean and finished in timeless neutral tones, creating a light and airy feel throughout. The entire main level offers tile flooring, while the stairs and upper level feature stylish vinyl plank flooring. The spacious layout includes a large eat-in kitchen with ample storage, a formal dining room, and generous living spaces ideal for both everyday comfort and entertaining. All bedrooms are located upstairs, including a generous primary suite with a private balcony showcasing stunning golf course views. Step outside to enjoy outstanding backyard views overlooking Tijeras Creek Golf Course, creating a serene and scenic backdrop rarely found. Residents enjoy access to resort-style association pool, spa, and BBQ areas, along with full SAMLARC amenities, including multiple pools and the popular Beach Club. Ideally situated adjacent to Tijeras Creek Golf Course, parks, trails, and recreation areas, this home offers the perfect blend of lifestyle, location, and turnkey living. A rare opportunity to own a remodeled home with golf course views in the heart of Rancho Santa Margarita.
Address: 15 VIA FLORIA RANCHO SANTA MARGARITA CA 92688
Featured Agent
Jordan Bennett
Regency Real Estate Brokers
Team Lead - DRE: 01850869
Phone: 949-829-7484
Request More Information
Listing Details
STATUS: Active SPECIAL LISTING CONDITIONS: Standard LISTING CONTRACT DATE: 2026-01-22 BEDROOMS: 3 BATHROOMS FULL: 2 BATHROOMS HALF: 1 LIVING AREA SQ FT: 1976 YEAR BUILT: 1994 HOA/MGMT CO: Villavante HOA/MGMT PHONE: 714-508-5070 HOA FEES FREQUENCY: Monthly HOA FEES: $228 HOA AMENITIES: PicnicArea, Pool, SpaHotTub APPLIANCES INCLUDED: Dishwasher, Disposal, Microwave CONSTRUCTION: Frame, Stucco COMMUNITY FEATURES: Curbs, Foothills, Golf, StreetLights, Sidewalks EXTERIOR FEATURES: RainGutters FIREPLACE: FamilyRoom FLOORING: Stone, Vinyl HEATING: Central, Fireplaces COOLING: CentralAir INTERIOR FEATURES: Balcony, SeparateFormalDiningRoom, EatInKitchen, AllBedroomsUp, WalkInClosets LAUNDRY FEATURES: WasherHookup, GasDryerHookup LOT FEATURES: ZeroToOneUnitAcre, CulDeSac, Greenbelt, OnGolfCourse, StreetLevel # GARAGE SPACES: 2 PARKING FEATURES: DoorSingle, GarageFacesFront, Garage, GarageDoorOpener PROPERTY TYPE: Residential PROPERTY SUB TYPE: Townhouse POOL FEATURES: Fenced, Filtered, Heated, InGround, Association SPA FEATURES: Community STORIES TOTAL: 2 NUMBER OF UNITS TOTAL: 1 VIEW: GolfCourse LISTING AGENT: ERNIE CAPONERA LISTING OFFICE: NEWPORT PROPERTIES LISTING CONTACT: 714-606-0926
Estimated Monthly Payments
List Price: $1,300,000 20% Down Payment: $260,000 Loan Amount: $1,040,000 Loan Type: 30 Year Fixed Interest Rate: 6.5 % Monthly Payment: $6,574 Estimate does not include taxes, fees, insurance.
Request More Information
Property Location: 15 VIA FLORIA RANCHO SANTA MARGARITA CA 92688
This Listing
Active Listings Nearby
Featured Agent
Jordan Bennett
Regency Real Estate Brokers
Team Lead - DRE: 01850869
Phone: 949-829-7484
The Fair Housing Act prohibits discrimination in housing based on color, race, religion, national origin, sex, familial status, or disability.
The information being provided by CRMLS is for the visitor's personal, non-commercial use and may not be used for any purpose other than to identify prospective properties visitor may be interested in purchasing.
The accuracy of all information, regardless of source, including but not limited to square footages and lot sizes, is deemed reliable but not guaranteed and should be personally verified through personal inspection by and/or with the appropriate professionals. The data contained herein is copyrighted by CRMLS. Any dissemination of this information is in violation of copyright laws and is strictly prohibited.
Information Deemed Reliable But Not Guaranteed. The information being provided is for consumer's personal, non-commercial use and may not be used for any purpose other than to identify prospective properties consumers may be interested in purchasing. This information, including square footage, while not guaranteed, has been acquired from sources believed to be reliable.
Last Updated: 2026-03-15 13:26:07
Orange County Condo Mania






