Jordan Bennett of Regency Real Estate Brokers - 949-829-7484
SOLD! MLS: OC24117449 $1,145,000
4 Bedrooms with 4 Baths15222 TAYLOR WAY
TUSTIN CA 92782MLS: OC24117449
Status: SOLD
Closed On: 2024-08-14
Sold Price: $1,145,000
Sold Price per SqFt: $627
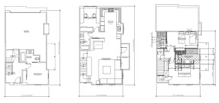
Square Footage: 18274 Bedrooms
4 Baths
Year Built: 2007
Zip Code: 92782Listing Agent: KELLY LEYERLE of FIRST TEAM REAL ESTATE 949-241-4206
Listing Remarks
$50,000 LESS THAN ANY OTHER 4 BEDROOM IN ALL OF IRVINE AND TUSTIN !!! INCREDIBLE DEAL!!!! Welcome to 15222 Taylor Way located in Columbus Square in the Tustin Legacy. This end unit Camden Place townhome has been completely rethought and upgraded in 2019. Fully permitted remodel added a 4th bedroom and full bathroom. You will not find another one like this !! Walking in from the front patio is the first floor bedroom, complete with a full bathroom. On the second level you will find reconfigured floor plan, allowing for an open great room, kitchen and dining area also creating privacy for the second bedroom and the second full bathroom on this level.. The third level has been completely upgraded to include 2 ensuites - The first ensuite is the primary with 2 closets, ceiling fan and large windows that give incredible natural light. The primary bathroom includes dual sink vanity, and walk in shower. The additional ensuite on this level is perfect for kids to be on the same level with their own private bathroom. Please see supplements for the list of endless upgrades including dual central AC, whole house fan, Bosch Appliances, walk in closet. recessed lighting, ceiling fans and much more! One of the best locations in the community, steps to the park and a short walk to the clubhouse where you will find the Junior Olympic pool, spa, exercise room and another park. A short walk to the newest park in Tustin, Veteran's Sports Park and the the Village at Tustin Legacy Shopping Center. Columbus Square is zoned for the Legacy Academy Middle and High School and Heritage Elementary, sought after schools offering the TIDE and STEAM curriculums. Close to John Wayne Airport, freeways and the beautiful beaches of Orange County.
Address: 15222 TAYLOR WAY TUSTIN CA 92782
Featured Agent
Jordan Bennett
Regency Real Estate Brokers
Team Lead - DRE: 01850869
Phone: 949-829-7484
Request More Information
Listing Details
STATUS: Closed SPECIAL LISTING CONDITIONS: Standard LISTING CONTRACT DATE: 2024-06-01 CLOSE DATE: 2024-08-14 BEDROOMS: 4 BATHROOMS FULL: 4 LIVING AREA SQ FT: 1827 YEAR BUILT: 2007 HOA/MGMT CO: Camden Place HOA/MGMT PHONE: 949-833-2600 HOA FEES FREQUENCY: Monthly HOA FEES: $162 HOA AMENITIES: Clubhouse, OutdoorCookingArea, Barbecue, PicnicArea, Playground, Pool, SpaHotTub APPLIANCES INCLUDED: Dryer, Washer COMMUNITY FEATURES: Curbs, StreetLights, Suburban, Sidewalks FIREPLACE: None HEATING: Central COOLING: CentralAir, Dual, WholeHouseFan INTERIOR FEATURES: Balcony, CeilingFans, RecessedLighting, BedroomOnMainLevel, EntranceFoyer, WalkInClosets LAUNDRY FEATURES: Inside, LaundryRoom # GARAGE SPACES: 2 PARKING FEATURES: DoorMulti, DirectAccess, Garage PROPERTY TYPE: Residential PROPERTY SUB TYPE: Condominium POOL FEATURES: Association SPA FEATURES: Association STORIES TOTAL: 3 NUMBER OF UNITS TOTAL: 1057 VIEW: Neighborhood LISTING AGENT: KELLY LEYERLE LISTING OFFICE: FIRST TEAM REAL ESTATE LISTING CONTACT: 949-241-4206
Property Location: 15222 TAYLOR WAY TUSTIN CA 92782
This Listing
Active Listings Nearby
You Might Also Be Interested In...
The Fair Housing Act prohibits discrimination in housing based on color, race, religion, national origin, sex, familial status, or disability.
The information being provided by CRMLS is for the visitor's personal, non-commercial use and may not be used for any purpose other than to identify prospective properties visitor may be interested in purchasing.
The accuracy of all information, regardless of source, including but not limited to square footages and lot sizes, is deemed reliable but not guaranteed and should be personally verified through personal inspection by and/or with the appropriate professionals. The data contained herein is copyrighted by CRMLS. Any dissemination of this information is in violation of copyright laws and is strictly prohibited.
Information Deemed Reliable But Not Guaranteed. The information being provided is for consumer's personal, non-commercial use and may not be used for any purpose other than to identify prospective properties consumers may be interested in purchasing. This information, including square footage, while not guaranteed, has been acquired from sources believed to be reliable.
Last Updated: 2026-04-29 10:29:45
Orange County Condo Mania






