Jordan Bennett of Regency Real Estate Brokers - 949-829-7484
MLS: PW25279804 $1,150,000
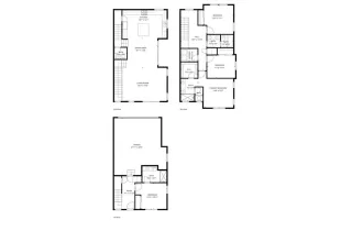
4 Bedrooms with 4 Baths201 MOUNTAIN SAGE
LAKE FOREST CA 92610MLS: PW25279804
Status: ACTIVE
List Price: $1,150,000
Price per SQFT: $534
Square Footage: 21524 Bedrooms
4 Baths
Year Built: 2020
Zip Code: 92610Listing Agent: CHAD LANGSETH of KELLER WILLIAMS REALTY 714-524-2423
Listing Remarks
Welcome to this turnkey home with great views, beautiful three-story condo in the prestigious gated Iron Ridge community in Portola Hills. This stunning END UNIT offers a blend of luxury living and modern convenience with plenty of guest parking directly adjacent to the unit. Many, Many community amenities. the ground floor ADA-accessible and ensuite 1 bedroom 1 full bathroom opens out to a large patio perfect for your guests to enjoy or could be an amazing home office or just an extra bonus area for the kiddos!. The attached two-car garage provides convenience to easily add an EV Charger. The spacious 2nd floor open-plan layout is filled with an abundance natural light into the home! In the kitchen there is a large island with seating, quartz countertops, Gas Cooktop, Pantry and much more. This living area makes it the perfect spot for entertaining guests or spending cherished family time. the best smart home features providing enhanced security, WiFi thermostat, convenience and optimized energy efficiency at the touch of a button. On the upper third level, a well-equipped laundry room await. The master suite indulges with a walk-in closet, dual vanity sinks, and mountain views. The secondary bath comes complete with a dual vanity sink. The Iron ridge Community invites recreation with sport fields, tennis courts, resort-style pool, multiple playgrounds, mini water park, jacuzzis, poolside cabanas, large clubhouse hosts events with kitchen and fireplace, perfect for large gatherings and events, dog parks, hiking trails and more. This perfect location in paradise offers easy access to the 241 toll road, and award-winning schools. Embrace comfort, luxury, and the serenity of Iron Ridge.... NO MELLO-ROOS. LOW 1.10 TAX RATE. Ideal for primary residence or investment.
Address: 201 MOUNTAIN SAGE LAKE FOREST CA 92610
Featured Agent
Jordan Bennett
Regency Real Estate Brokers
Team Lead - DRE: 01850869
Phone: 949-829-7484
Request More Information
Listing Details
STATUS: Active SPECIAL LISTING CONDITIONS: Standard LISTING CONTRACT DATE: 2025-12-23 BEDROOMS: 4 BATHROOMS FULL: 3 BATHROOMS HALF: 1 LIVING AREA SQ FT: 2152 YEAR BUILT: 2020 HOA/MGMT CO: Copperleaf HOA/MGMT PHONE: 949-448-6160 HOA FEES FREQUENCY: Monthly HOA FEES: $412 HOA AMENITIES: DogPark, Barbecue, Playground, Pool, SpaHotTub, Trails APPLIANCES INCLUDED: GasCooktop, Microwave COMMUNITY FEATURES: DogPark, StreetLights, Suburban, Pool FIREPLACE: None HEATING: Central COOLING: CentralAir LAUNDRY FEATURES: LaundryRoom, UpperLevel # GARAGE SPACES: 2 PROPERTY TYPE: Residential PROPERTY SUB TYPE: Condominium POOL FEATURES: Community, Association STORIES TOTAL: 3 NUMBER OF UNITS TOTAL: 234 VIEW: PeekABoo LISTING AGENT: CHAD LANGSETH LISTING OFFICE: KELLER WILLIAMS REALTY LISTING CONTACT: 714-524-2423
Estimated Monthly Payments
List Price: $1,150,000 20% Down Payment: $230,000 Loan Amount: $920,000 Loan Type: 30 Year Fixed Interest Rate: 6.5 % Monthly Payment: $5,815 Estimate does not include taxes, fees, insurance.
Request More Information
Property Location: 201 MOUNTAIN SAGE LAKE FOREST CA 92610
This Listing
Active Listings Nearby
Featured Agent
Jordan Bennett
Regency Real Estate Brokers
Team Lead - DRE: 01850869
Phone: 949-829-7484
The Fair Housing Act prohibits discrimination in housing based on color, race, religion, national origin, sex, familial status, or disability.
The information being provided by CRMLS is for the visitor's personal, non-commercial use and may not be used for any purpose other than to identify prospective properties visitor may be interested in purchasing.
The accuracy of all information, regardless of source, including but not limited to square footages and lot sizes, is deemed reliable but not guaranteed and should be personally verified through personal inspection by and/or with the appropriate professionals. The data contained herein is copyrighted by CRMLS. Any dissemination of this information is in violation of copyright laws and is strictly prohibited.
Information Deemed Reliable But Not Guaranteed. The information being provided is for consumer's personal, non-commercial use and may not be used for any purpose other than to identify prospective properties consumers may be interested in purchasing. This information, including square footage, while not guaranteed, has been acquired from sources believed to be reliable.
Last Updated: 2026-02-22 04:26:40
Orange County Condo Mania






