Jordan Bennett of Regency Real Estate Brokers - 949-829-7484
SOLD! MLS: OC25221187 $1,032,525
2 Bedrooms with 2 Baths34010 #3 SELVA RD
DANA POINT CA 92629MLS: OC25221187
Status: SOLD
Closed On: 2025-11-13
Sold Price: $1,032,525
Sold Price per SqFt: $1,110
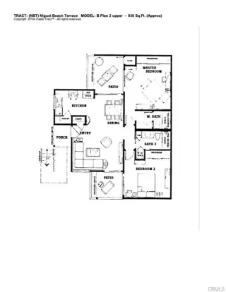
Square Footage: 9302 Bedrooms
2 Baths
Year Built: 1982
Zip Code: 92629Listing Agent: ELISSA VAUGHT of DOUGLAS ELLIMAN OF CALIFORNIA elissa.vaught@yahoo.com
Listing Remarks
Directly across from Strands Beach in Dana Point you'll find a private, coastal retreat in the Niguel Beach Terrace community. This upper-level 2-bedroom, 2 full bath condo has been completely refreshed for turnkey coastal living. This community has also been completely re-piped with PEX. The kitchen shines with quartz countertops, a spacious pantry, and refrigerator included. Soaring vaulted ceilings fill the space with light, while the open floor plan connects to two private decks from every room, bringing the ocean breeze right to your door. Both bathrooms feature fresh quartz counters and stylish tile, complemented by new flooring throughout. An in-unit washer and dryer make life effortless. This home is offered furnished or unfurnished, giving you the flexibility to move right in and enjoy the lifestyle you’ve been dreaming of. With resort-style amenities including a pool, spa, and EV charging, plus walkability to the beach, harbor, trails, dining, and shopping, this is coastal Orange County living at its best. Dana Point also offers a free trolley connecting you to nearby cities including: Laguna Beach, San Juan Capistrano, and San Clemente.
Address: 34010 #3 SELVA RD DANA POINT CA 92629
Featured Agent
Jordan Bennett
Regency Real Estate Brokers
Team Lead - DRE: 01850869
Phone: 949-829-7484
Request More Information
Listing Details
STATUS: Closed SPECIAL LISTING CONDITIONS: Trust LISTING CONTRACT DATE: 2025-09-30 CLOSE DATE: 2025-11-13 BEDROOMS: 2 BATHROOMS FULL: 2 LIVING AREA SQ FT: 930 YEAR BUILT: 1982 HOA/MGMT CO: Niguel Beach Terrace HOA/MGMT PHONE: 949-448-6121 HOA FEES FREQUENCY: Monthly HOA FEES: $507 HOA AMENITIES: MaintenanceGrounds, Pool, SpaHotTub, Trash APPLIANCES INCLUDED: Dishwasher, GasRange, Refrigerator, RangeHood, Dryer, Washer ARCHITECTURAL STYLE: CapeCod COMMUNITY FEATURES: Biking, Sidewalks, Pool FIREPLACE: None FLOORING: Laminate HEATING: Central COOLING: None INTERIOR FEATURES: Balcony, CeilingFans, Furnished, LivingRoomDeckAttached, OpenFloorplan, Pantry, QuartzCounters, PrimarySuite, WalkInPantry LAUNDRY FEATURES: Inside # GARAGE SPACES: 0 PARKING FEATURES: Assigned, Guest, OnSite, OneSpace, Uncovered PROPERTY TYPE: Residential PROPERTY SUB TYPE: Condominium POOL FEATURES: Community, Association STORIES TOTAL: 1 NUMBER OF UNITS TOTAL: 307 VIEW: Neighborhood, TreesWoods LISTING AGENT: ELISSA VAUGHT LISTING OFFICE: DOUGLAS ELLIMAN OF CALIFORNIA LISTING CONTACT: elissa.vaught@yahoo.com
Property Location: 34010 #3 SELVA RD DANA POINT CA 92629
This Listing
Active Listings Nearby
You Might Also Be Interested In...
The Fair Housing Act prohibits discrimination in housing based on color, race, religion, national origin, sex, familial status, or disability.
The information being provided by CRMLS is for the visitor's personal, non-commercial use and may not be used for any purpose other than to identify prospective properties visitor may be interested in purchasing.
The accuracy of all information, regardless of source, including but not limited to square footages and lot sizes, is deemed reliable but not guaranteed and should be personally verified through personal inspection by and/or with the appropriate professionals. The data contained herein is copyrighted by CRMLS. Any dissemination of this information is in violation of copyright laws and is strictly prohibited.
Information Deemed Reliable But Not Guaranteed. The information being provided is for consumer's personal, non-commercial use and may not be used for any purpose other than to identify prospective properties consumers may be interested in purchasing. This information, including square footage, while not guaranteed, has been acquired from sources believed to be reliable.
Last Updated: 2026-04-29 19:29:48
Orange County Condo Mania






