Jordan Bennett of Regency Real Estate Brokers - 949-829-7484
SOLD! MLS: PW25067183 $725,000
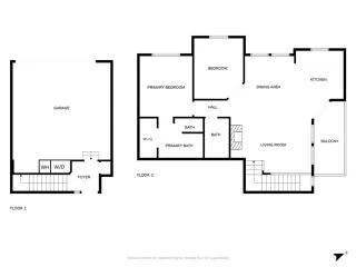
2 Bedrooms with 2 Baths1163 S POSITANO AVENUE
ANAHEIM HILLS CA 92808MLS: PW25067183
Status: SOLD
Closed On: 2025-04-28
Sold Price: $725,000
Sold Price per SqFt: $721
Square Footage: 10062 Bedrooms
2 Baths
Year Built: 1995
Zip Code: 92808Listing Agent: JAMES FESTINI of EXP REALTY OF CALIFORNIA INC 714-767-5524
Listing Remarks
Welcome to this stunningly upgraded 2-bedroom, 2-bathroom corner unit in the sought-after Monaco community of Anaheim Hills. This home offers privacy, tranquility, and the perfect blend of comfort and convenience with a spacious greenbelt right in front. Nestled above your private 2-car garage with direct access, this home greets you with an open-concept floor plan and soaring high ceilings that create an airy, light-filled ambiance. The spacious living room features a cozy fireplace with a natural stone surround and a built-in media center, providing the ideal space for your entertainment setup while adding extra style to the area. The living room seamlessly flows into the dining area, upgraded kitchen, and private balcony—the perfect spot to unwind with a drink while enjoying a peek of the hills and city lights. The beautifully remodeled kitchen is truly the heart of the home, featuring quartz countertops, a large center island with bar seating, and stainless steel appliances. The custom white shaker cabinetry is designed for style and functionality, with soft-close doors and drawers that maximize storage and accessibility. The natural light pours in through dual-pane windows, highlighting the modern finishes, warm-colored waterproof laminate flooring, and high ceilings throughout the home. Both bedrooms are bright and spacious, offering a tranquil retreat with stylish, low-maintenance features. The home also boasts a newer energy-efficient HVAC system, updated plumbing fixtures, and a newer water heater for ultimate comfort and efficiency. Additionally, the laundry area is conveniently located in the attached 2-car garage, making everyday chores a breeze. Residents of Monaco enjoy resort-style amenities, including a sparkling pool, relaxing spas, a clubhouse, lighted tennis courts, and an exercise room. Conveniently located near top-rated schools, shopping, dining, entertainment, and easy access to freeways and toll roads, this home offers the best comfort and accessibility. With its prime corner location, a spacious greenbelt right out front, and a private attached garage with in-unit laundry, this turnkey beauty is a rare find! Schedule your private tour today!
Address: 1163 S POSITANO AVENUE ANAHEIM HILLS CA 92808
Featured Agent
Jordan Bennett
Regency Real Estate Brokers
Team Lead - DRE: 01850869
Phone: 949-829-7484
Request More Information
Listing Details
STATUS: Closed SPECIAL LISTING CONDITIONS: Standard LISTING CONTRACT DATE: 2025-03-24 CLOSE DATE: 2025-04-28 BEDROOMS: 2 BATHROOMS FULL: 2 LIVING AREA SQ FT: 1006 YEAR BUILT: 1995 HOA/MGMT CO: Monaco HOA/MGMT PHONE: 949-218-9970 HOA FEES FREQUENCY: Monthly HOA FEES: $380 HOA AMENITIES: Clubhouse, FitnessCenter, MaintenanceGrounds, Management, OutdoorCookingArea, Barbecue, PicnicArea, Pool, RecreationRoom, SpaHotTub, TennisCourts APPLIANCES INCLUDED: SixBurnerStove, ConvectionOven, Dishwasher, ExhaustFan, Disposal, GasOven, GasRange, GasWaterHeater, HighEfficiencyWaterHeater, Microwave, SelfCleaningOven, WaterToRefrigerator, WaterHeater ARCHITECTURAL STYLE: Modern COMMUNITY FEATURES: Curbs, Gutters, Hiking, StormDrains, StreetLights, Suburban, Sidewalks, Park, Pool EXTERIOR FEATURES: RainGutters FIREPLACE: Gas, LivingRoom FLOORING: Laminate, SeeRemarks HEATING: ForcedAir, Fireplaces COOLING: CentralAir INTERIOR FEATURES: BreakfastBar, Balcony, BreakfastArea, CrownMolding, HighCeilings, OpenFloorplan, StoneCounters, RecessedLighting, SolidSurfaceCounters, Attic, DressingArea, PrimarySuite, WalkInClosets LAUNDRY FEATURES: WasherHookup, GasDryerHookup, InGarage LOT FEATURES: CulDeSac, NearPark # GARAGE SPACES: 2 PARKING FEATURES: DirectAccess, Garage, Paved PROPERTY TYPE: Residential PROPERTY SUB TYPE: Condominium ROOF: Tile POOL FEATURES: Community, Filtered, Heated, InGround, Association SPA FEATURES: Association, Community, Heated STORIES TOTAL: 2 NUMBER OF UNITS TOTAL: 1 VIEW: CityLights, ParkGreenbelt, Hills, Mountains, Neighborhood, Panoramic LISTING AGENT: JAMES FESTINI LISTING OFFICE: EXP REALTY OF CALIFORNIA INC LISTING CONTACT: 714-767-5524
Property Location: 1163 S POSITANO AVENUE ANAHEIM HILLS CA 92808
This Listing
Active Listings Nearby
You Might Also Be Interested In...
The Fair Housing Act prohibits discrimination in housing based on color, race, religion, national origin, sex, familial status, or disability.
The information being provided by CRMLS is for the visitor's personal, non-commercial use and may not be used for any purpose other than to identify prospective properties visitor may be interested in purchasing.
The accuracy of all information, regardless of source, including but not limited to square footages and lot sizes, is deemed reliable but not guaranteed and should be personally verified through personal inspection by and/or with the appropriate professionals. The data contained herein is copyrighted by CRMLS. Any dissemination of this information is in violation of copyright laws and is strictly prohibited.
Information Deemed Reliable But Not Guaranteed. The information being provided is for consumer's personal, non-commercial use and may not be used for any purpose other than to identify prospective properties consumers may be interested in purchasing. This information, including square footage, while not guaranteed, has been acquired from sources believed to be reliable.
Last Updated: 2026-05-20 10:29:36
Orange County Condo Mania






